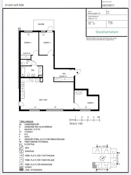
Igår kollade vi på ytterligare en lägenhet, en 4:a på 105 m2 i Råcksta. Den var superbra!